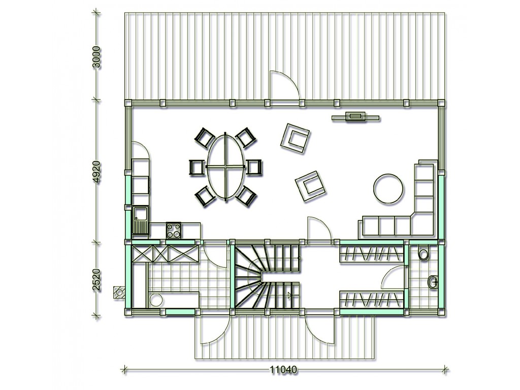
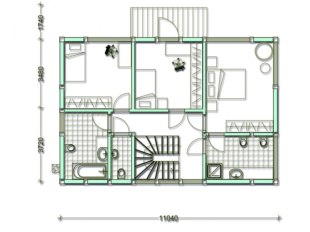
Maison Poteaux-Poutres 160m2 RT2012

160 000,00 € TTC.

Nouveau produit

La technique des poteaux-poutres offre de plus grandes possibilités, plus audacieuses. Elle permet de créer de grandes maisons aux volumes intérieurs très spacieux et lumineux !

Le mode de construction poteaux-poutres consiste à ériger une trame avec des poteaux en lamellé collé de fortes sections espacés de 2,5 à 5 m, reliés par des poutres.

Ces maisons ont également un aspect plus moderne que celles conçues en madriers empilés et peuvent prendre des formes atypiques.

Le poteaux-poutres créé des habitations extrêmement robustes et stables car le bois n'y travaille pratiquement pas, une maison en brique ne saurait pas être plus solide !

Produits connexes

SEO D 60
Score SEO
A
B
C
D
60
E
F
G
60
Audit SEO
Moyen
Critères techniques
Title Maison Poteaux-Poutres 160m2 RT2012 - Chalet bois discount
60 car. — optimal
Meta description (absente)
Aucune meta description
Balise H1 Maison Poteaux-Poutres 160m2 RT2012
OK — 1 H1 unique
Structure Hn H1:1 H2:0 H3:1 H4:9
Saut de niveau (ex: H1→H3 sans H2)
Images alt 4/29 sans alt
4 image(s) sans alt sur 29
Contenu 582 mots
582 mots — correct, mais 600+ serait mieux
Open Graph 0/3 balises
Aucune balise Open Graph
Canonical (absente)
Pas de lien canonical — risque de contenu dupliqué
Langue fr-fr
Langue : fr-fr
Mobile viewport Configuré
Viewport configuré
Liens 95 internes, 3 externes
6 lien(s) vide(s) ou javascript:
Mots-clés fréquents
chalet (15) maison (15) garage (11) produit (7) poteauxpoutres (7) chalets (6) carport (4) produits (4) total (4) panier (4)
Positionnement Google
Suggestions IA
💬

Assistant Chalet Bois Discount

Chalets, abris et garages en bois

Bonjour ! Je suis l'assistant Chalet Bois Discount. Comment puis-je vous aider ? Chalets, abris de jardin, garages bois, pergolas...